** EINMAL STADLAUER, IMMER STADLAUER - 4 ZIMMER NEUBAUWOHNUNG MIT LOGGIA **

OBJEKT ID 8221/152
1220
Wien
Wohnung
Kauf
aktiv

Beschreibung

EINMAL STADLAUER, IMMER STADLAUER - 4 ZIMMER NEUBAUWOHNUNG MIT LOGGIA 

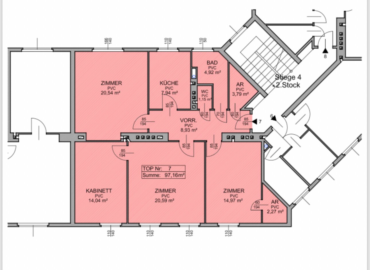
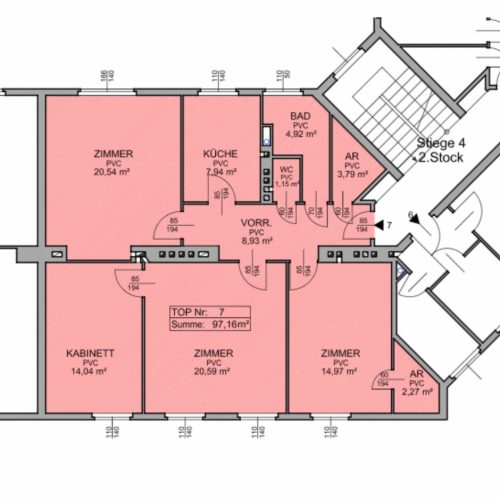
Zum Verkauf gelangt eine großzügig geschnittene 4-Zimmer-Neubauwohnung (Baujahr 1967) im 2. Stock eines gepflegten Wohnhauses in der Stadlauer Straße.

Die Wohnung überzeugt mit einer Wohnfläche von knapp 98 m² sowie einer 6,5 m² großen Loggia, die direkt vom Schlafzimmer aus begehbar ist – ideal für entspannte Morgenstunden oder ruhige Abende im Freien.

Ein besonderes Plus für die Zukunft: Ein Lift ist bereits geplant, wodurch die Attraktivität und der Wohnkomfort der Liegenschaft zusätzlich gesteigert werden.


Raumaufteilung & Highlights

  • Zentrale Begehbarkeit aller Räume

  • Großzügiges Wohnzimmer

  • Drei weitere vielseitig nutzbare Zimmer

  • Separate Küche

  • Badezimmer & WC getrennt

  • 2 praktische Abstellräume innerhalb der Wohnung

  • Eigenes Kellerabteil

  • Geplanter Lift im Haus

Der durchdachte Grundriss ermöglicht flexible Nutzung – perfekt für Familien, Paare mit Homeoffice-Bedarf oder auch für eine klassische WG-Konstellation.


Flexibles Investment mit Weitblick

Die Wohnung ist derzeit befristet vermietet bis Oktober 2026.

Sie kann wahlweise:

  • bestandsfrei übernommen werden oder

  • mit einer Mietvertragsverlängerung als attraktive Anlegerwohnung dienen.

Damit eignet sich diese Immobilie sowohl für Investoren als auch für Eigennutzer, die mittel- bis langfristig planen möchten.


Eckdaten auf einen Blick:

  • Wohnfläche: ca. 98 m²

  • Loggia: ca. 6,5 m²

  • Stockwerk: 2. Stock

  • Baujahr: 1967

  • Betriebskosten: aktuell € 315,– brutto inkl. Rücklage

  • Kaufpreis: € 399.000,–

  • Lage: Stadlauer Straße

  • Lift: geplant   

 

Haben wir Ihr Interesse geweckt ?

Gerne steht Ihnen Herr Tabrizi für weitere Fragen & Besichtigungstermine unter 0660 840 840 8 zur Verfügung!

www.immodealer.at

IMMO-DEALER, DES IS A WOHNSINN

Wir weisen ausdrücklich auf unser wirtschaftliches Naheverhältnis mit dem Abgeben / der Abgeben und auf unsere Vermittlungstätigkeit als Doppelmakler hin.

Irrtum und Änderungen vorbehalten!

Eckdaten

97.2 m² Wohnfläche
1 Badezimmer
4 Zimmer
1 WC
1967 Baujahr
m² Balkon & Terrassen Fläche
1 Separate WC's
Zustand
m² Kellerfläche
m² Nutzfläche
Zustand

Ausstattung

Abstellraum
Befeuerung
Boden
Fahrstuhl
Fliesen
Gas
Parkett
Personen
Seniorengerecht

Medien

OBJEKT ID 8221/152
Kaufpreis: 399.000,00 €

Ihr Berater

Radnusch Tabrizi

Weitere Immobilien

Haben wir Ihr
Interesse geweckt?

Genießen Sie eine exklusive Lebensqualität mit Immodealer. Unsere hochwertigen Immobilien vereinen erstklassigen Komfort, zeitloses Design und eine erstklassige Lage. Entdecken Sie mit uns die Faszination des Wohnens und finden Sie Ihr individuelles Traumdomizil, das Ihre Lebensvorstellungen perfekt widerspiegelt.